Bauamt, Bekanntmachungen, Bürgerinformation
Bauland in Saaldorf-Surheim
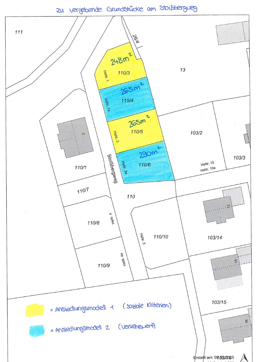
Die Gemeinde vergibt wieder vier Parzellen für Doppelhaushälften an Gemeindebürger und solche, die es werden wollen. Eine Bewerbung ist vom 01.11.2025 bis 31.01.2026 möglich. Näheres zu den Grundstücken und Vergaberichtlinien sowie die Bewerbungsformulare finden Sie…





